产品中心

产品中心 /PRODUCT

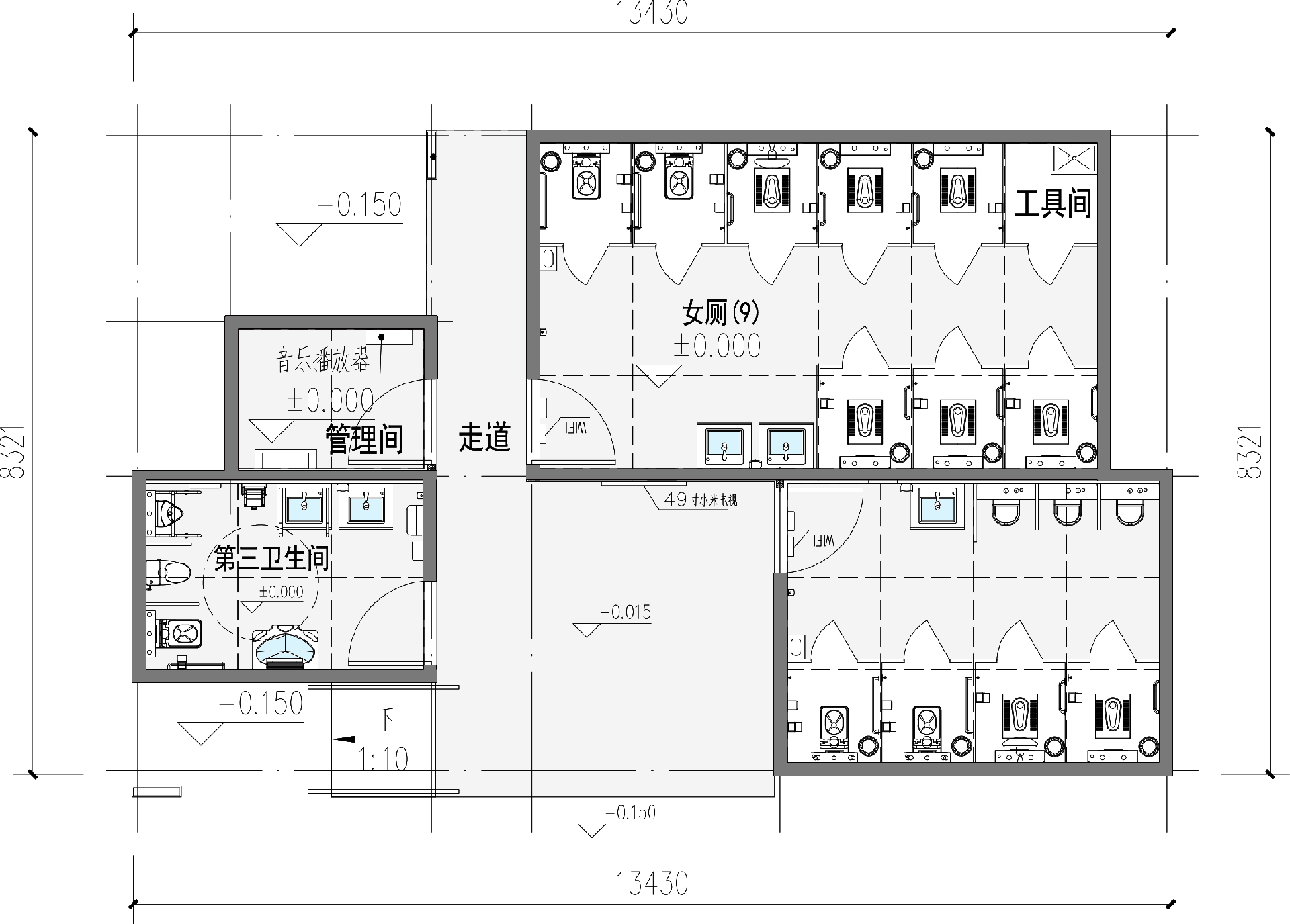
5A豪华型


5A豪华型2——效果图.jpg

5A豪华型2——平面图.png